Alycia Dethelot Négociatrice
Vendu

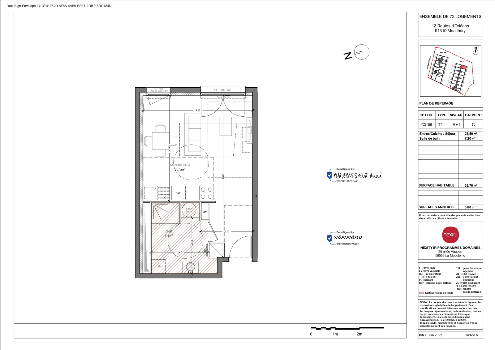
Studio 1 pièce(s) 32.7 m²

Montlhéry (91310)
174 665 € Référence 420

A propos de ce bien

Nouveauté, Votre agence l'ETUDE DU PATRIMOINE, vous propose à la vente un appartement neuf livraison T4 2024.

Le studio est situé 12 routes d'Orléans dans la commune de Montlhéry, à proximité immédiate du coeur de ville, proche des commerces et commodités dont le Bus 4503 qui dessert la Gare de "MASSY-PALAISEAU" et le bus 9115 qui dessert la "PORTE D'ORLEANS".

Le studio se compose d'une entrée avec placard desservant un séjour avec une cuisine aménagée et équipée, d'une salle d'eau avec ses WC.

Une place de parking vient compléter le bien.

Caractéristiques de ce bien

  • Surface 32,70 m²
  • 1 salle(s) d'eau
  • construit en 2024
  • cuisine américaine (semi-équipée)
  • 1 garage(s)
  • 1er étage
  • visiophone
  • interphone

Diagnostics énergétiques

Consommation énergétique
A B C D E F G
Emission de gaz à effet de serre
A B C D E F G
DPE vierge

Informations financières

Prix de vente honoraires TTC inclus 174 665 €

Calcul des mensualités

* Champs obligatoires