Amel OURAGHI Négociatrice
Vendu

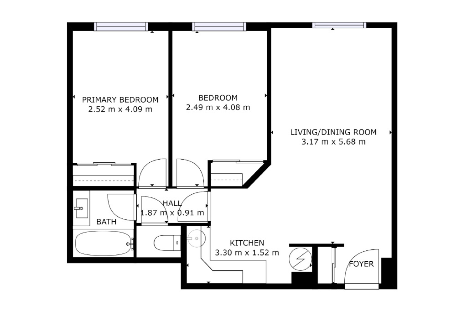
Appartement 3 pièce(s) 2 chambre(s) 52.08 m²

L'Haÿ-les-Roses (94240)
307 000 € Référence 72

A propos de ce bien

Votre agence l'Étude du Patrimoine vous propose en EXCLUSIVITÉ, rue Eugène Givors, dans le très prisé secteur du Petit Robinson. Au deuxième étage d'un immeuble de standing (construit en 2006) en pierre de taille de seulement 22 appartements, un bien de type 3 entièrement refait à neuf, composé d'une entrée avec placard de rangement, d'un lumineux séjour exposé plein sud, d'une cuisine ouverte et aménagée, d'un dégagement desservant deux chambres de bonne taille, elles aussi, exposées plein sud et équipées de placard aménagé, d'une salle de bains avec baignoire, d'un meuble vasque, miroir avec bandeau lumineux, et WC séparés. L'immeuble est équipé d'un ascenseur desservant le sous-sol, où se situent une cave et un emplacement de stationnement privatif rattaché au bien. Accès facile à pied à l'arrêt de bus 187 « STRASBOURG » direction Porte d'Orléans, RER B « ARCUEIL-CACHAN » et future ligne du Grand Paris Express (métro 15) en 4 arrêts seulement. Ce bien est un véritable coup de coeur ! Idéal pour un premier achat ou un investissement locatif rentable. Lien visite virtuelle : https://my.matterport.com/show/?m=uJ8oPNhEWoS Taxe foncière : 1171 € Charge de copropriété : 1377 €/an (aucune procédure en cours) Honoraire de 3 %, charge acquéreur.

Caractéristiques de ce bien

  • Surface 52,08 m²
  • 2 chambre(s)
  • 1 parking(s)
  • 2ème étage
  • 4 étage(s)
  • ascenseur
  • cave

Diagnostics énergétiques

Consommation énergétique
A B C D E F G
Emission de gaz à effet de serre
A B C D E F G
DPE ANCIENNE VERSION

Informations financières

Prix de vente honoraires TTC inclus 307 000 €
Prix de vente honoraires TTC exclus 298 000 €
Honoraires TTC à la charge acquéreur 2,93%
Taxe foncière annuelle 1 171 €

Calcul des mensualités

* Champs obligatoires